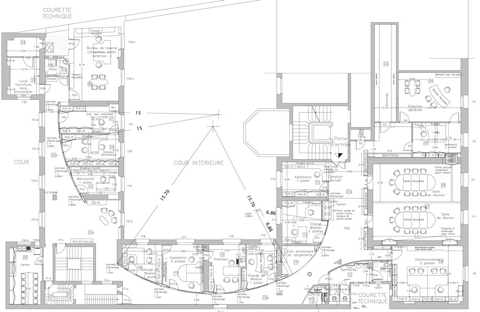
"mémoire de la Shoah" foundation

paris, france



design development and construction documents


architect - archy


client - private foundation


function - offices


nsf - 600 m2


built - 2008



prev / next 2/6